Nedland's - Custom Wine Room & Wok Kitchens
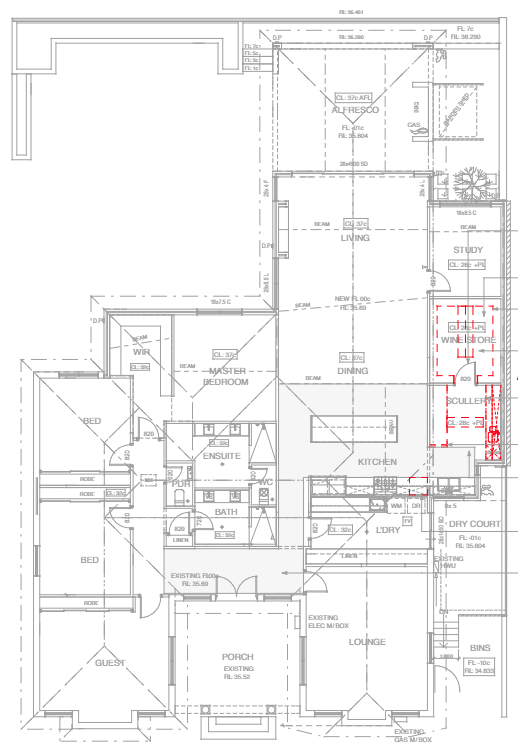
ZERA has been engaged to undertake a refurbishment of an existing property in Nedlands, focusing on resolving rising damp issues within a previously constructed wine room. The project, currently in the design phase, involves a retrofit solution using insulated panel systems developed in collaboration with Lazco — tailored specifically for wine storage applications. In addition to restoring functionality and performance to the wine room, the adjacent scullery will be converted into a high-performance wok kitchen.
Working within a live residential environment presents key constraints around access, noise, and dust control. The design and construction approach is being carefully considered to reduce impact on occupants while ensuring compatibility with the existing structure.
Location: Nedlands
Contract type: Construct
Architect: CBD Architects

